Аренда помещения свободного назначения

80 000 ₽/мес

616 ₽ за м²/мес.

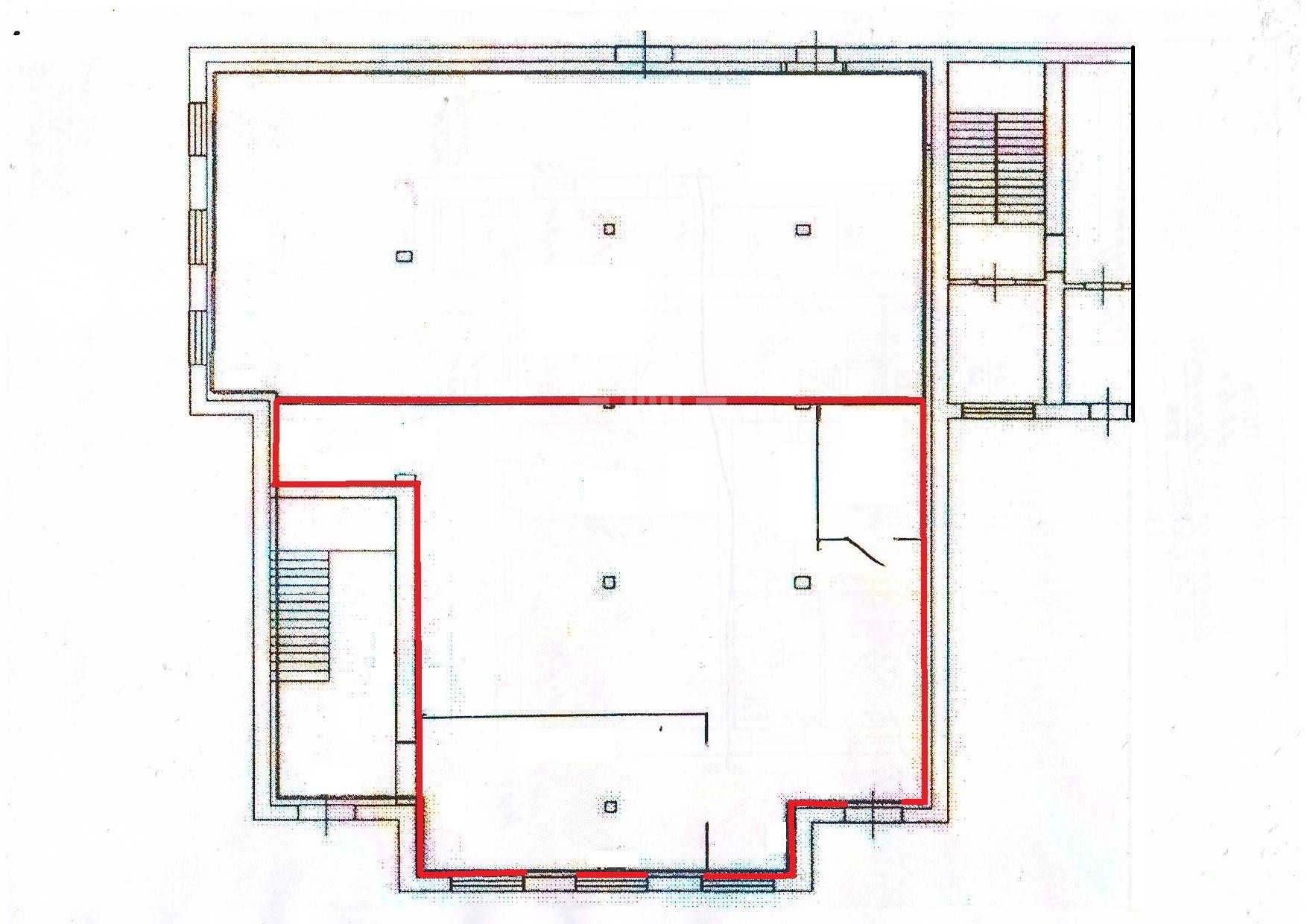
130 м²
Площадь
1/2
Этаж

Поделиться

Добавить в избранное

Сдаётся в аренду помещение общей площадью 130 кв.м. на первом этаже отдельно стоящего здания на пересечении улиц Стрелецкая и Семашко. Отдельный вход. Стоянка автомашин. Центральное водо, электро и газо снабжение. Индивидуальное отопление. Электричество 380 В, мощность 35 кВт. Идеальное место для размещения двух ПВЗ!
Аренда 80 тысяч в месяц + коммунальные расходы. 
Торг обсуждается индивидуально.
 
id:2400.

Дата обновления: 26 марта 2026