Продажа дома
Владимирская область, Ославское с, Нерлинская
- 116 м²
- Площадь
- 38.00 м²
- Жилая площадь
- 30.00 м²
- Площадь кухни
- 2
- Этажность
- 5 сот
- Площадь участка
16 000 000 ₽
137 694 ₽ за м²
ID объявления 12485292
Поделиться
Добавить в избранное
Уникальное предложение! Дом с видом на пойму реки Нерль!
Дом новый, построен для себя, с использованием качественных материалов и соблюдением строительных норм.
В основе дома фундамент: бетонная плита (под ней щебенка, песок и утеплитель пеноплекс).
Стены: газоблоки BONOLIT, тройной слой утеплителя, вентфасад и отделка клинкерный кирпич, долговечный материал (Срок службы более 100 лет), идеальный материал для отделки фасадов.
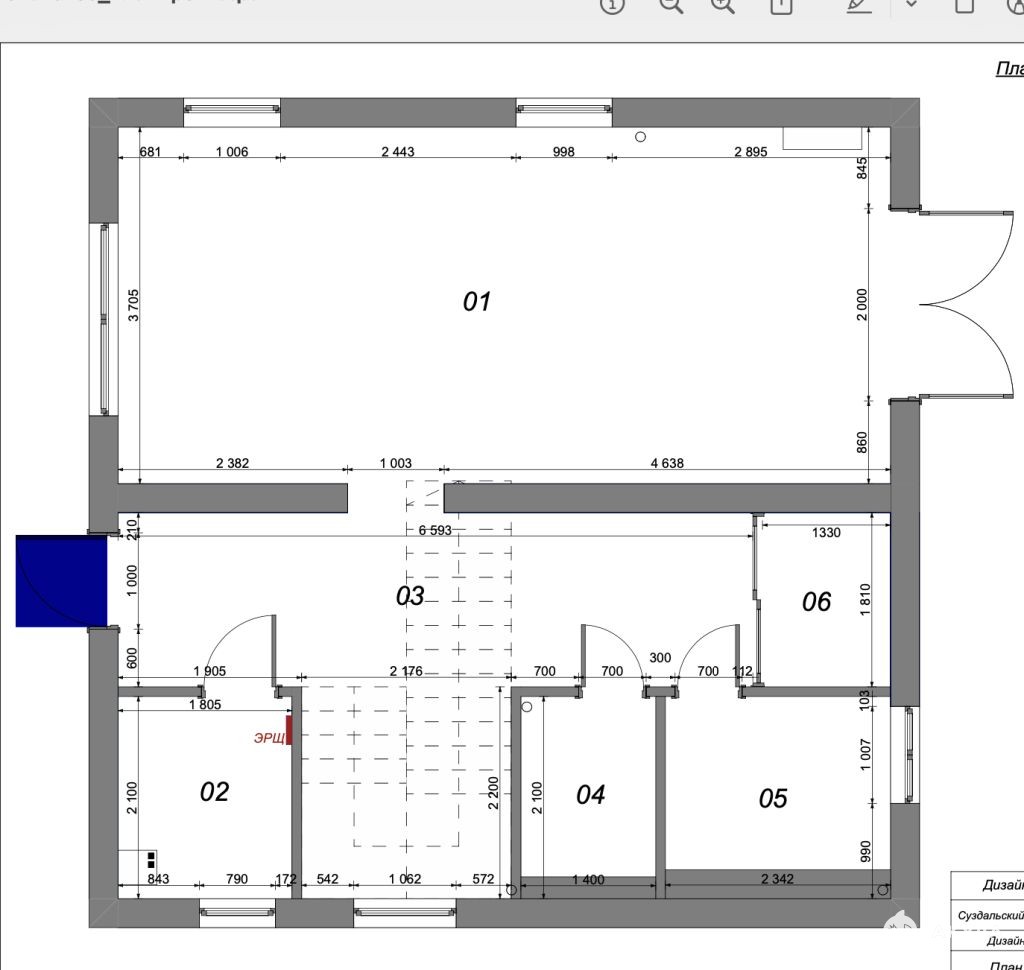
Продуманная планировка дома: на первом этаже большая кухня-гостиная 30 кв.м. с выходом в мангальную зону. Ванная с окном, санузел отделаны кафелем. На первом этаже пол-керамогранит и система теплого пола. Котельная-отдельное помещение, где расположен газовый котел, насосы и компрессоры.
На втором этаже три изолированные спальни (11, 9+9, 52+15, 8 кв.м) и большая гардеробная (7, 8 кв.м) с системой хранения. Из спальни 15.8 кв.м выход на застекленную утепленную веранду с потрясающим видом на пойму реки Нерль.
Дом укомплектован мебелью. Установлены кондиционеры.
Лестница будет дубовая (уже заказана) с подсветкой ступеней.
Территория участка выложена брусчаткой, огорожена забором. Сделаны ворота для автомобиля и калитка с выходом к реке.
Один взрослый собственник. Поспешите купить дом своей мечты.
Дата обновления: 14 февраля 2026