Продажа помещения свободного назначения

Владимирская область, Струнино, Советская улица, д.1стр1

29 900 000 ₽

33 679 ₽ за м²

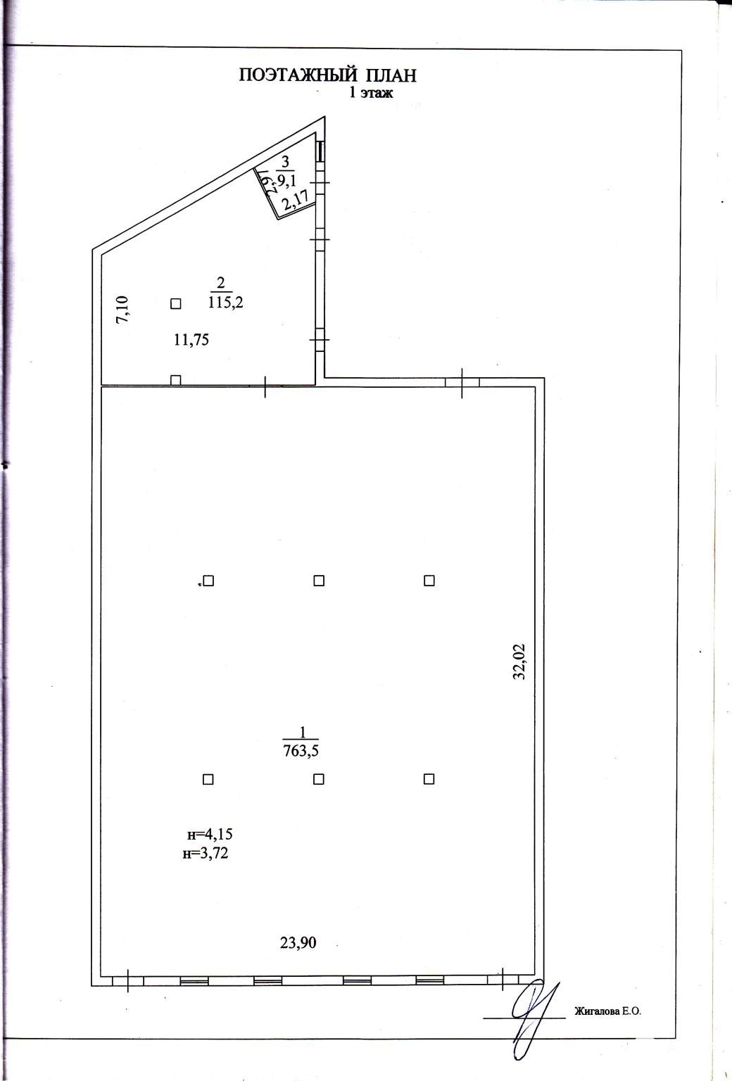
888 м²
Площадь
1
Этажность

Поделиться

Добавить в избранное

Продается, площадью 887.8 м2, этажей в здании - 1. Здание находится рядом с железнодорожной платформой, удобное расположение, асфальтированная дорога. Подойдет для размещения производства и объекта торговли

Дата обновления: 30 октября 2025