Продажа дома

Владимирская область, деревня Аксенцево,

73 м²
Площадь
16 сот
Площадь участка

4 760 000 ₽

65 206 ₽ за м²

ID объявления 12329399

Поделиться

Добавить в избранное

Номер объекта - 1523

Предлагаем к продаже проект дома.
Срoк cтpоительcтвa от 3 дo 6 мeсяцев.
Участок входит в стоимость. Торг на участок обсуждается.
Звоните ответим на все вопросы.
Адрес: Владимирская область, Камешковский муниципальный округ, деревня Аксенцево, 167.

Комплектация дома "Базовая":

В "Базовую" комплектацию дома входит полный закрытый теплый контур:

• Несущие стены газобетон / теплая керамика
• Утепленная кровля из металлочерепицы
• Окна двухкамерные с тройным стеклопакетом
• Металлическая входная дверь
• Фундамент (в зависимости от участка)
• Утепленная отмостка

О доме:

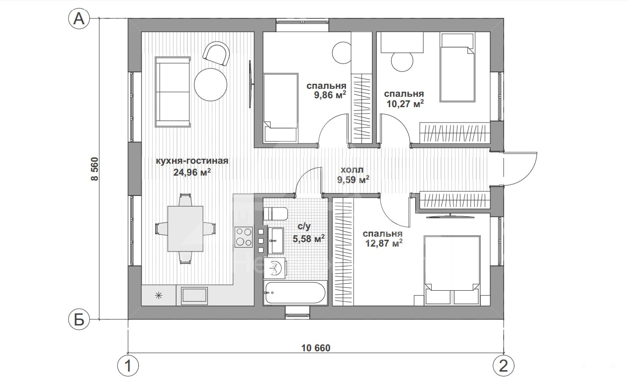
• Площадь дома: 73.00 м2
• Высота потолка: 2.90 м.
• Кровля: кликфальцевая
• Подшивка свесов софитами
• Фасад: штукатурка Короед

В доме:

• Кухня: 25.00 м2
• Комнаты: 3, площадью 10-13-10 м2
• Санузел: Совмещенный в доме
• Ванная: Стандартная

Расположение в доме:

На этаже расположено: Кухня-гостиная, 3 Спальни, Сан. Узел, Холл

Об участке:

• Форма: Квадратная
• Рельеф: Ровный
• Земля: Земля плодородная. Суглинок. Участок чистый без деревьев и кустарников — идеален для строительства или планировки под себя.
• Категория: Населенных пунктов
• Вид разрешенного использования: Для индивидуального жилищного строительства
• Забор: Отсутствует
• Межевание участка: Произведено/Колышки по всему периметру участка
• Границы: Уточнены

Инфраструктура на участке:

• Вода: Колодец, глубина 7-8 метров
• Электричество: подведено к столбу. Столб на границе участка. На столбе уже есть распредкоробка. Требуется только подключение к сети
• Канализация: Нет
• Газ: Есть в населенном пункте

Окружение:

• Дорога к участку: Асфальт до съезда на линию. По линии щебёнка. Примерно 50м
• Зимой участок: доступен
• До ближайшей остановки — от 200 до 500 метров

Места рядом:

• Остановка общественного транспорта; Автобусы 107 и 179.
• На выезде к трассе расположены две автозаправочные станции
• В соседней деревне Давыдово, расположенной от участка примерно 1 км, есть - 3 Продовольственных магазина; Школа; Фельдшерско-акушерский пункт; Церковь Преображения Господня в Давыдово; Камешковский районный историко-краеведческий музей, Музей А.П. Бородина; Дом культуры.

Если вас заинтересовал дом — обращайтесь за подробностями. Всегда рады помочь. Помощь в получении кэшбека при покупке недвижимости, ипотеки, реализации материнского капитала и сертификатов. Гарантируем безопасность сделки.

Дата обновления: 24 декабря 2025